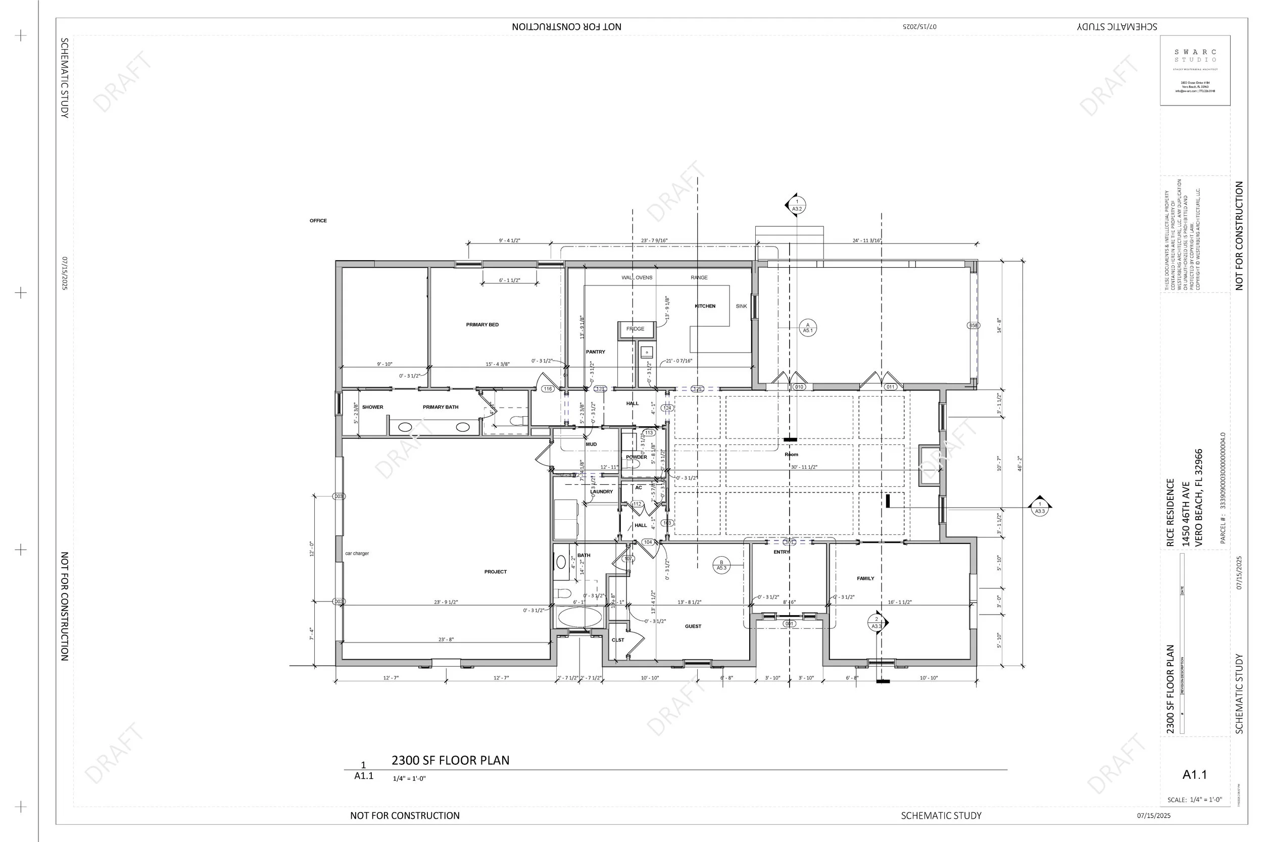
VE Plan Option PROJECT MEETINGS Nov 29 Written By Stacey Westerberg 2300 SF PLAN OPTION Stacey Westerberg
VE Plan Option PROJECT MEETINGS Nov 29 Written By Stacey Westerberg 2300 SF PLAN OPTION Stacey Westerberg