Schematic Design Presentation
Please finalize any pending items within one week to maintain the project schedule. If we do not hear from you, we will move forward with the items presented. If you need more than one week to finalize decisions, please submit a Hold Request or Request for more Information.
DATE: 02-06-2026
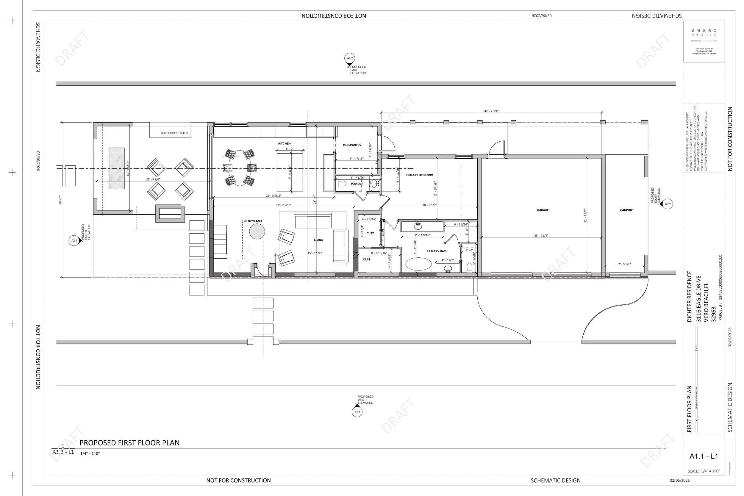
LAYOUT/DESIGN DECISIONS:
Open Great Room layout approved. Master Bath layout to incorporate makeup vanity by reducing shower size. Additional layouts for the Powder Room and Laundry will be provided. Guest closets to be entered through Guest Baths, eliminate second floor linen closet. Move Office bathroom to west side of office.
PRODUCTS SELECTED:
N/A
APPROVED ACTIONS TO MOVE FORWARD:
Update plans per layout notes above. Develop interiors and architectural details.
PENDING ITEMS:
